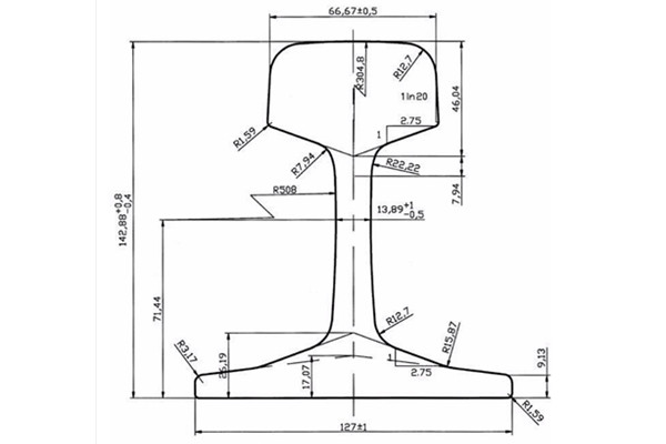
The 115RE rail is a T -shaped section flat -bottomed rail based on the US standard Aream 2016.
The mass of the 115RE rail is 56.9kg per meter, which is equivalent to 115 pounds per yard, so it is also called the 115LB rail.
Dimensions:
| Type | Head Width(mm) | Rail Height(mm) | Base Width(mm) | Web Thickness(mm) | Weight(kg/m) |
|---|---|---|---|---|---|
| 115RE(115lb) | 69.06 | 168.28 | 139.7 | 15.88 | 56.9 |
Specification:
Length: 12m ~ 25M
Grade: R260/R350ht
Material: 55Q U71MN SS 900A
Origin: China
Type: Heavy rail, crane rail
Bolt holes diameter: 24mm
Certificate: ISO9001: 2008
Standard: ASTM, Arema 2001
Drawing:

Inquiry Now