90 lbs rail (90-pound rail) is a type of rail track recommended by the American Railroad Association (ARA) for use on light freight rail lines, low-frequency rail, or light rail. 90 lb rails are widely used in North America.
Kingrail Parts can provide rail sections from 75 lb/yd (37.2 kg/m) to 141 lb/yd (69.9 kg/m). Stock lengths are generally 30', 33', 39', 40' and 12 meters.
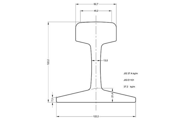
Dimensions:
| Rail Type | Hight width (mm) | Base width (mm) | Head width (mm) | Web thickness (mm) | Weight Kg/m | Material |
| 90 ARA-A | 142.88 | 130.18 | 65.09 | 14.29 | 44.65 | 900A/1100 |
Drawing:

Inquiry Now